
Nhà theo dạng được xây sẵn giao phần thô. Và trong quá trình trang trí, có nhiều điểm chủ nhân thay đổi cho phù hợp với gia đình mình, kể cả phân chia lại không gian chức năng.
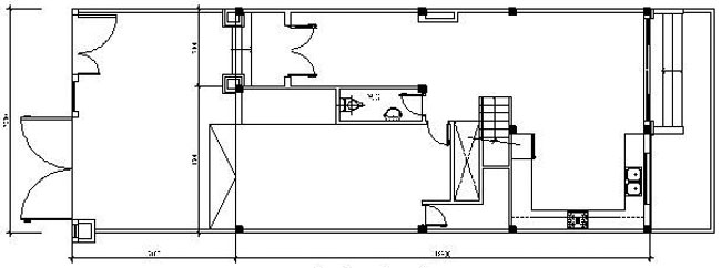
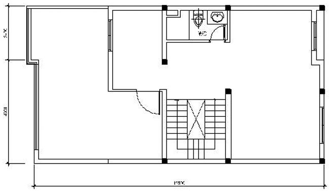
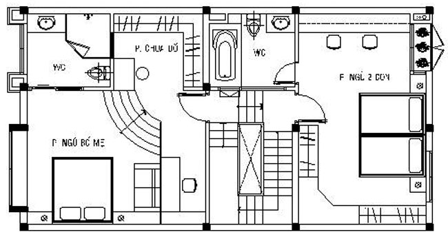
Tầng trệt được thay đổi bằng cách lùi vào để chừa thêm diện tích bên ngoài cho sân đậu xe hơi. Phòng vệ sinh ở ngay giữa nhà được đưa vào dưới chân cầu thang. Phòng khách được bố trí ngay ở tầng trệt nhìn thẳng ra khoảng sân có cây và hồ nước. Lầu 1 có chiều cao đến 3,6m cho cảm giác hơi bị lạc lõng khi sử dụng làm phòng ngủ. Người thiết kế đã xử lý độ cao bằng cách chia không gian làm hai cấp độ. Phía trên cao dành cho nơi làm việc, phòng vệ sinh. Phía thấp dành cho giường ngủ, việc phân chia này đem lại nét khác biệt cho phòng ngủ tạo nên sự thú vị với cảm giác thay đổi. Lầu 2, cầu thang được xoay vế để tăng diện tích cho phòng giải trí.
Chủ đích thiết kế mang tính tiết kiệm mà vẫn đáp ứng công năng sử dụng và đủ về cảm giác. Cách bố trí trong nhà phù hợp với gia đình đông trẻ con, nên các không gian đều dành nhiều khoảng trống để vui chơi. Đồ nội thất và trang trí trong nhà đều đơn giản, nhưng chú ý chi tiết và đặc điểm từng khu chức năng để tạo không khí riêng. Phòng khách có một kệ trang trí lấy đường nét từ cánh hoa như một điểm nhấn, đèn có hình cành cây. Các bức tranh màu sắc nóng để tạo sự đầm ấm ở phòng ăn. Nhiều bức vẽ trên tường với cảnh từ các nhân vật yêu thích ở phòng trẻ em tạo sự thích thú. Phòng giải trí cũng treo nhiều bức tranh trên tường với nhân vật của các bộ phim nổi tiếng tạo nên không khí cinema ngay trong nhà.
Cách bố trí không gian chức năng như phòng ngủ chính có hướng nhìn ra công viên bên ngoài. Bàn làm việc nhìn ra tán cây xanh.
Từ phòng giải trí có thể tận hưởng khoảng sân và cây xanh bên ngoài.
Không gian thoáng, nội thất đơn giản tạo sự dễ chịu cho phòng ăn và bếp.
Phòng ngủ có hai độ cao khác nhau tạo sự khác lạ.
|
|
|
||
|
|
Ảnh trên, phải: Phòng giải trí như một phòng chiếu phim mini. Ảnh trái và ảnh dưới, phải: Góc làm việc nằm trong phòng ngủ. Góc tủ quần áo lượt bớt mọi chi tiết và màu sắc. Phòng trẻ em với các bức tranh từ những bộ phim yêu thích.
Bài và ảnh : Thụy Vũ
KTS Đặng Phan Lạc Việt
Nguồn : sgtt.vn















Gửi phản hồi