Hoàn thành gần đây bởi hãng Office Twentyfive Architects, nhà Casa Familiar (còn được gọi là Gerakas) nằm ở ngoại ô Athens, Hi Lạp. Ngôi nhà được bao quanh bởi khu dân cư riêng biệt cùng với những khu vườn, không gian công cộng và một khu đất hẹp không rõ hình dạng ở phía Bắc, nơi tương lai sẽ là một công viên công cộng. Casa Familiar có thiết kế có màu trắng chủ đạo kết hợp với bề mặt kính lớn và gỗ tuyết tùng ốp một phần mặt tiền của tầng trên. Sân sau của ngôi nhà được mở ra một khu đất xanh mát.
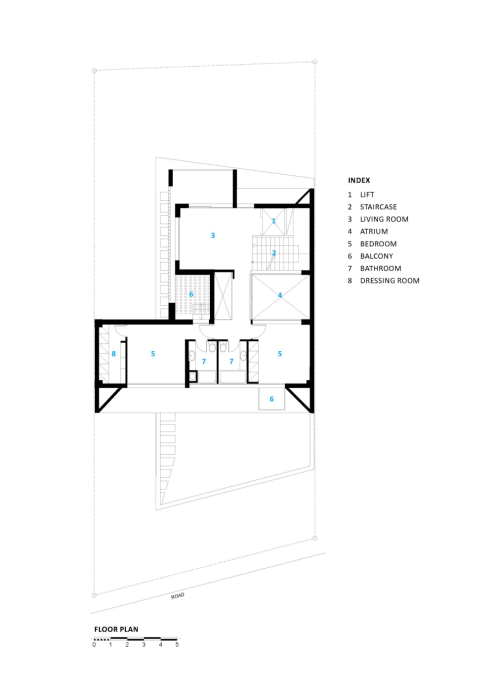
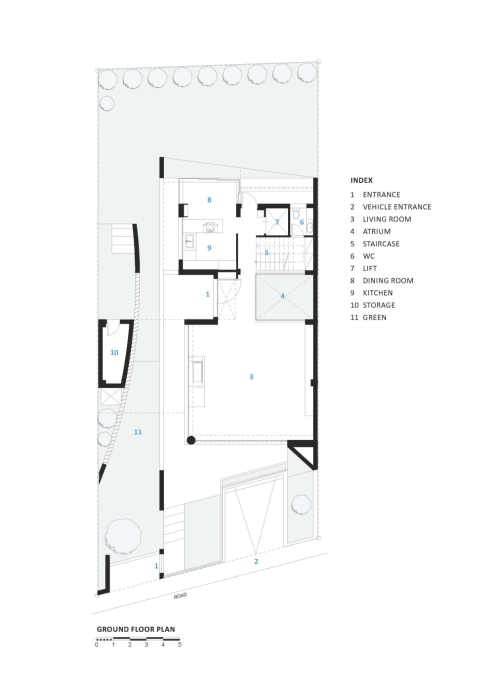
Tầng dưới gồm phòng khách, bếp, phòng ăn, cộng với một tầng hầm và bãi đậu xe. Mặt bằng mở của phòng khách và bếp được tạo điểm nhấn bởi bức tường lò sưởi màu xám. Tầng trệt được trải rộng toàn bộ không gian (hầu hết chiều dài mảnh đất) nhằm lấy được góc nhìn về phía công viên từ mỗi phòng. Phần sàn lầu vươn ra nhấn mạnh lối vào ở tầng trệt. Tầng lầu bao gồm một sảnh đón khách, các phòng ngủ và phòng tắm. (Ảnh: Matheus Kleanthis)
Bình An
Theo freshome.com






















Gửi phản hồi