Ngôi nhà diện tích không lớn, lại nằm sát góc hẻm, nhưng kiến trúc sư đã dụng công rất nhiều để ngôi nhà có được nhiều nhất ánh sáng, nắng, gió…
Nhà trong hẻm nhỏ (vừa chui lọt một xe gắn máy) nhưng với lợi thế hai mặt tiền, ta có thể dễ dàng trang trí, lấy sáng, lấy gió… Giải pháp kiến trúc dùng cho mặt tiền là một khối trụ hình thang được khoét vài chỗ thích hợp để làm bancông, kết hợp những mảng kính tạo điểm nhấn và hiện đại cho công trình.
Dải đá nổi bật với sắc trắng và xám nhạt ốp thành một mảng lớn, uốn trên vách rào và tường nhà, cộng thêm một chút hoa lá làm cho lối vào nhà trở nên thân thiện hơn.
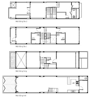
60m2 diện tích mặt bằng không phải là lớn nên kiến trúc sư chọn giải pháp làm không gian mở cho phòng khách, bếp ăn ở tầng trệt. Các phòng trên lầu như phòng làm việc, phòng ngủ được phân chia theo nhu cầu sử dụng. Mỗi phòng được thiết kế có cửa, lan can mở ra bên ngoài gắn kết với cây và hoa.
Dụng công của nhà thiết kế là phối hợp các vật dụng đều màu trắng để không gian chung nhẹ nhàng đồng thời làm nổi bật những đồ vật cần thiết. Ánh sáng nội thất tập trung thành từng khu vực nhằm phân khu chức năng và nhấn mạnh thêm những chi tiết trang trí. Bản thân nguồn sáng cũng là chủ thể chính thể hiện về đề tài thiên nhiên.
Công năng hợp lý, không gian thoáng đạt, màu sắc, hình ảnh phong phú có trật tự thể hiện phần nào sự phong phú của thiên nhiên miền nhiệt đới, là những gì mà thiết kế công trình này hướng đến.
Thiết kế, đồ dùng nội thất hiện đại phù hợp với không gian mở cho nhà bếp, phòng ăn, phòng khách. Đa số các vật dụng đều ưu tiên màu trắng để không gian chung trở nên nhẹ nhàng.
Thiết kế, đồ dùng nội thất hiện đại phù hợp với không gian mở cho nhà bếp, phòng ăn, phòng khách. Đa số các vật dụng đều ưu tiên màu trắng để không gian chung trở nên nhẹ nhàng.
Màn cửa, trang trí tường lấy cảm hứng từ thiên nhiên, gần gũi nhẹ nhàng. Cầu thang bằng kiếng giúp không gian trở nên thoáng hơn.
Phòng ngủ, phòng làm việc được phân chia vừa đủ nhu cầu. Nhưng vẫn giữ cách bố trí nhẹ nhàng, thanh thoát và lấy cảm hứng trang trí từ màu sắc thiên nhiên.
Bài: Sóng Nam – Ảnh: Hải Đông
Địa chỉ: Lê Văn Sỹ, Q.3, TP.HCM
Thiết kế: KTS Đặng Phan Lạc Việt
Nguồn: sgtt.vn














Gửi phản hồi