Đơn vị thiết kế: Metropolis
Địa điểm xây dựng: Lima, Peru
Đơn vị thi công: Jose Orrego
Đội ngũ thiết kế: Anahi Bastian
Tổng diện tích: 230m2
Năm hoàn thành: 2009
Ảnh: Elsa Ramirez
Kỹ sư kết cấu: Jorge Avendaño
Giám sát mặt bằng: Cesar Roncagliolo
Tư vấn ánh sáng: Murano light
Nhà thầu chính: MyM contructores
Ngôi nhà nằm trên hàng đầu tiên của lô đất và các kiến trúc sư thiết kế với tầm nhìn ra bãi biển và các đảo trước nhà. Nét thẩm mỹ của ngôi nhà trong chi tiết thiết kế cho mùa hè thể hiện bằng những đường cong hiện đại làm gợi nhớ đến kiến trúc Brazil vào những năm sáu mươi.
Toàn bộ căn nhà được sơn phủ màu trắng với điểm nhấn màu đỏ cho các chi tiết chính như hồ bơi và đồ nội thất. Cách trang trí này cũng gợi nhớ những chi tiết đắt giá trong bộ phim Stanley Kubrick với các đường cong màu trắng tương phản với những chi tiết màu đỏ.
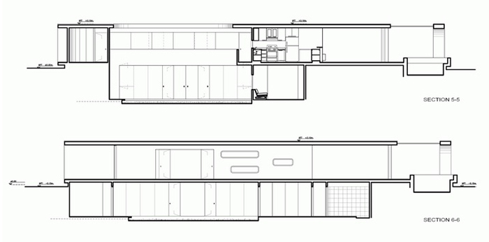
Nhìn từ bên ngoài, ngoại thất ngôi nhà có dáng vẻ của một chiếc hộp được nâng cao màu trắng tiếp xúc với mặt trước nhà. Một mặt của ngôi nhà bao gồm một lưới bê tông hiện đại cho phép nội thất nhà được phơi bày mà không làm mất đi tính riêng tư của nó.
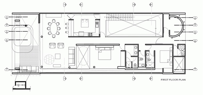
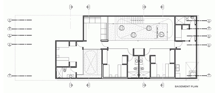
Phòng ăn và phòng khách được đặt lồng ghép và hướng ra hàng hiên bên ngoài thông qua hệ thống cửa kính trượt. Một vách ngăn bên trong được sắp đặt ở tầng dưới nơi bao gồm phòng ngủ và phòng gia đình nối tiếp để tạo ra một khu vực chung gần gũi. Phòng ngủ chính được đặt ở tầng một và được thiết kế với tầm nhìn hướng ra biển.
Toàn thể ngôi nhà tạo ra sự tương phản bởi thiết kế màu đỏ nổi bật trên bề mặt màu trắng. Từ bên trong phòng khách, kiến trúc cho phép gia chủ được ngắm cảnh quan tuyệt đẹp của bãi biển, đảo và hoàng hôn trên biển.
Bình An
(Theo archdaily.com)



































Gửi phản hồi